









































4-к кв. Нижегородская область, Нижний Новгород ул. Первоцветная, 1 (91.2 м²)
Современный семейный жилой комплекс "Цветы 2", является продолжением существующей застройки ЖК "Цветы" по ул. Академика Сахарова. Экологически чистый Советский район, на границе с Приокским, в непосредственной близости от улиц Ванеева, Маршала Малиновского, Рокоссовского, Генерала Ивлиева, Анкудиновского шоссе, Дубёнок и Кузнечики. К микрорайону примыкает большая лесопарковая зона Щелковский хутор с эко-тропами, 3 озерами, оборудованными пляжами.
СДАЁТСЯ шикарная, удобная 4-комнатная квартира ОТ СОБСТВЕННИКА, без комиссии, с евроремонтом от застройщика, с новой импортной бытовой техникой и кухней, TV Sony Bravia (с возможностью подключения телевидения и интернета), а также мебелью ИКЕА. Сдается впервые на длительный срок (от 11 мес. и более)
Окна на разные стороны света, высокий 3й этаж, потолки 2,7 м, квартира ооочень теплая зимой и не нагревается в жару!
Остановка общественного транспорта "Сбербанк" в шаговой доступности (3 мин.), рядом с домом 2х-уровневый подземный паркинг.
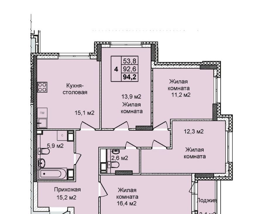
Функциональная современная планировка: 4 светлые удобные, ВСЕ изолированные комнаты на разные стороны дома, большая кухня 15,1 кв. м, два санузла, лоджия. Все комнаты с мебелью (в т.ч. две 2х- спальные, две 1,5-спальная кровати).
Вся инфраструктура, необходимая для комфортного проживания, в шаговой доступности в ЖК "Цветы": современные школы, детские сады, фитнес-центр с бассейном, большой гипермаркет "Магнит", множество продуктовых магазинов в шаговой доступности (Пятерочка, ВкусВилл, КуулКлевер) с пекарнями, кондитерские, аптеки, частные медицинские и детские развивающие центры, салоны красоты, кафе и т.д.
Чистый благоустроенный двор, видеонаблюдение, бесшумные скоростные лифты, современные детская и спортивная площадки, колясочная.
В 5-7 минутах езды на авто торгово-развлекательный центр и торговые ряды "Жар-Птица", с ФизКультом и бассейном, социальный рынок "Народный", радио и строительный рынки, недалеко ЖК "КМ Анкудиновский парк", ТРЦ "Мега", 15 минут на автомобиле до центра города (Нижегородского кремля)
* Идeaльнo для ceмьи с детьми/ родителями
**Условия аренды**
- курение и животные запрещены!!!
- * БЕЗ КОМИССИИ!
- **Залоговый депозит (обеспечительный платеж):** 70 000 руб. (платится при заключении договора, не возвращается при расторжении договора досрочно, а также при утрате/порче имущества)
- **Предоплата:** 1 месяц
- с заключением официального договора
- без торга
- Агентов, риэлторов, специалистов по недвижимости и т.п. прошу НЕ БЕСПОКОИТЬ! (сообщения и звонки будут игнорироваться!)
- Квартира НЕ СДАЕТСЯ для субаренды, для размещения бизнеса
- Квартира СДАЕТСЯ для проживания аккуратной и платежеспособной семьи.
- все коммунальные платежи (всю платежку) оплачивает Арендатор (по состоянию на январь около 6000 р.+ счетчики)
Удобства
Балкон
Посудомоечная машина
Холодильник
Стиральная машина
Телевизор
Нагреватель воды
Кондиционер
Особенности
Можно курить
Подходит для мероприятий
Можно с животными
Подходит для семьи с детьми
Последние добавленные апартаменты
1-к кв. Нижегородская область, Нижний Новгород просп. Ленина, 51к7 (31.1 м²)
3-к кв. Нижегородская область, Нижний Новгород Космическая ул., 52 (60.0 м²)
О нас говорят
Хорошая услуга «Личный помощник». За вами закрепляют менеджера, который подбирает для вас варианты, помогает с подписанием договора и проверкой квартиры. Константин оперативно отвечал на наши вопросы и подстраивался под возникающие в ходе поиска требования.
Ins Fairy
Нашел себе отличную квартиру в Мск на Локалс. В этот раз пользовался услугой Личный помощник; Каждый день мне присылали варианты и по моим ответам уточняли мои критерии. В итоге выбрали прямо то, что мне было надо!
Ilya Malov
Отличный сервис! Нужный вариант подобрали уже на следующий день после обращения. Документы с арендодателем я подписала в конце той же недели и сразу переехала. Квартира после ремонта, все новое, я — первый арендатор, до метро 15 минут пешком. Это потрясающе!
Maria Levkina
Поиски квартиры заняли ровно неделю, Андрей проверял все варианты и составлял подробное описание. Так же оказал помощь при подписании договора. И вот теперь, я снимаю квартиру без комиссии, от собственника, с хорошим ремонтом, в новом доме по приемлемой цене.
Dmitry Kovtun
Клиентоориентированность — на высшем уровне. И форма связи любая.. мне было удобно общаться через почту — не проблема: в будни и даже в выходные, и днем и ночью — постоянно на связи) В какой-то момент даже подумала, что личный помощник никогда не отдыхает))
Teresa Olehnovich
Услуга «Личный помощник» — это не только дешевле, чем платить деньги каким-то непонятным посредникам или риэлторам, но и гарантированная ежедневная консультация от грамотного специалиста. Одним словом, всё очень понравилось.
Алина Василевская
Моя оценка 5! Нашли с личным помощником то, что нужно!! Удобно и безопасно. Отличный, проверенный сайт! Спасибо, Локалс!
Еленка Потапова
Искал с помощью услуги «Личный помощник». Сервис справился с поставленной перед ним задачей — найти мне жильё в короткие сроки (дедлайн 1,5 недели). Спасибо!
Dimas
У меня только положительные впечатления остались. Мне присылал варианты каждый день, иногда даже дважды. Всегда оперативно реагировал на мои пожелания. В итоге, так и сняли одну из предложенных квартир и очень довольны.
Любовь












